Virtual Tour
01
01
01
Overview

Vibrant, Elegant Living

Kishan Signate offers more than just homes; it presents a vibrant community woven together by thoughtfully designed, wide, tree-lined streets. These avenues serve as the arteries of a neighborhood that prioritizes both aesthetics and functionality, creating a picturesque and tranquil environment perfect for leisurely strolls, active mornings, and safe spaces for children to play.

Download Brochure

ARCHITECT BY

Urvi Shah

LOCATION

Atladara, Vadodara

TYPE

Individual Villa
RERA REGISTRATION NO. : PR/GJ/VADODARA/VADODARA/Vadodara Municipal Corporation/RAA14611/301224/300429
Layout Plans

Design Meets Functionality

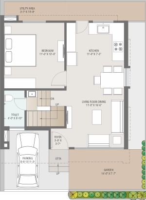
LAYOUT PLAN
Floor Plans

Effortless Living Spaces

29
Elegant Individual Villa
|

Kishan Signate offers a variety of thoughtfully designed floor plans to cater to diverse needs and preferences. Find your perfect Signate layout.

Bedroom: 4
Living: 1
Kitchen: 1
Balcony: 2
Bathroom: 4

Ground Floor

First Floor

Second Floor

Ground Floor

First Floor

Second Floor

Club House

Where Community Blossoms

The Kishan Solitaire clubhouse offers a dedicated space for residents to unwind and connect. Featuring a multipurpose hall, gym, and spaces for games and yoga, it promotes an active and social lifestyle. The clubhouse is designed to be a central hub, enhancing the community experience within Kishan Solitaire.

Amenities

Indulge in Comfort

Lush Green Garden
Gymnasium
Club House
Swimming Pool
Multi Purpose Hall
Children Play Area
Specification

Defined by Quality

Structure

All RCC & brick work as per structural engineer's design

Flooring

Premium Vitriefied tiles in guest lounge, kitchen, dinning area & bedrooms.

Kitchen

Exclusive Granite platform with S.S Sink with designer tiles. Wash area with ceramic tiles dado & natural stone flooring.

Toilet

Designer bathroom with premium quality fittings & vessels. Glazed tile dado lintel level. All Bathroom Thermostatic Diverter.

Doors & Windows

Main Door: High quality woodern frame door with veneer paneling on both sides. Other internal Doors: Stone frames with veneer flush doors.

Paint

Internal Mala plaster with Birla putty, primer & external single coat plaster with rustic texture.

Terrace Finish

Elegant china mosaic finish with water prooting treatment.

Electrification

Concealed copper ISI wiring & branded modular switches with sufficient points.

Nearby Places

Everything You Need

  • Little Italy Restaurant
    3.0 km
  • Shree Khodiyar Kathiyawadi Dhaba
    4.0 km
  • De Courtyard
    3.0 km
  • Italy's Traditional Pizzeria
    3.1 km
  • Mayurpankh Multi-Cuisine Restaurant
    2.5 km
  • Hoppers: Restrocafe & Sports Arena
    3.0 m
  • Jupiter Hospital
    2.8 km
  • Synergy Medicare Hospital
    3.9 km
  • Adarsh Hospital & ICU
    2.2 km
  • BAPS Shastriji Maharaj Hospital
    2.2 km
  • Welcare Hospital
    1.4 km
  • Phoenix International School (CBSE)
    1.5 km
  • Phoenix School (GSEB)
    750 m
  • Vibgyor High School (CBSE & ICSE)
    4.7 km
  • BAPS Swaminarayan Vidyamandir (GSEB)
    3.2 km
  • Tree House High School (CBSE)
    2.2 km
  • Tree House High School (GSEB)
    3.1 km
  • Gujarat Public School (CBSE)
    3.1 km

We Request

  • Possession will be given after one month of settlement of account.
  • Extra work will be executed after receipt of full advance payment.
  • Stamp Duty, Registration Charge, GST, or any new central govt/VUDA taxes, if applicable, shall be borne by the client.
  • Continuous default in payments will lead to cancellation.
  • Architect/Developers shall have the right to change or revise the scheme or any details; such changes shall be binding to all.
  • In case of delay in light connection by authority, developers will not be responsible.
  • All dimensions are indicative and actual dimensions in each room/plot may slightly vary.
  • Common compound wall of individual unit will be as per architect's design.
  • In case of cancellation of booking, 5% of the total value of the bungalow and payable tax will not be refunded.
  • Any plans, specifications or information in this brochure cannot form part of an offer, contract or agreement.
  • All members shall essentially be part of the society formed by the association members and abide by the society bylaws.
  • After virtual completion of the work, all repairs and maintenance such as drainage, watchman salary, electricity bills, etc. shall be borne by society members.
  • Members of the society are not allowed to change the elevation of the duplex under any circumstances.
  • This brochure shall not be treated as a legal document; it is only for informational purposes.

Other Amenities

  • 24x7 Security
  • Underground & Overhead water tank
  • 24 Hours water supply
  • Number Plates on Each Unit to Maintain Uniformity
  • Anti termite treatment with piping to the building
  • Under ground cabeling in society

Payment Mode

  • 20% ON BOOKING
  • 15% ON PLINTH
  • 15% ON CF SLAB
  • 15% ON FE SLAB
  • 15% AT PLASTER
  • 15% AT FLOORING
  • 5% ON FINISHING
Where to Find Us

From Your Place to Ours

Site Location

Behind GPS School & Mercedes-Benz Showroom, near Squirrel Circle, Atladara, Vadodara, Gujarat 390012

Ready to move in?

Send us your inquiry today!

Inquire Now
Scroll