Virtual Tour
01
01
01
Overview

Where Comfort Resides.

Kishan Sagewood offers an enclave of grand and sophisticated living, where each 4 BHK bungalow is designed to provide an enriching lifestyle. The experience begins with thoughtfully planned living spaces featuring premium finishes like vitrified tiles and granite platforms, creating an atmosphere of refined comfort.

Download Brochure

ARCHITECT BY

Dhiren Soni

LOCATION

Bill, Vadodara

TYPE

Triplex
RERA REGISTRATION NO. : PR/GJ/VADODARA/VADODARA/Vadodara Municipal Corporation/RAA14874/250225/311229
Layout Plans

Design Meets Functionality

LAYOUT PLAN
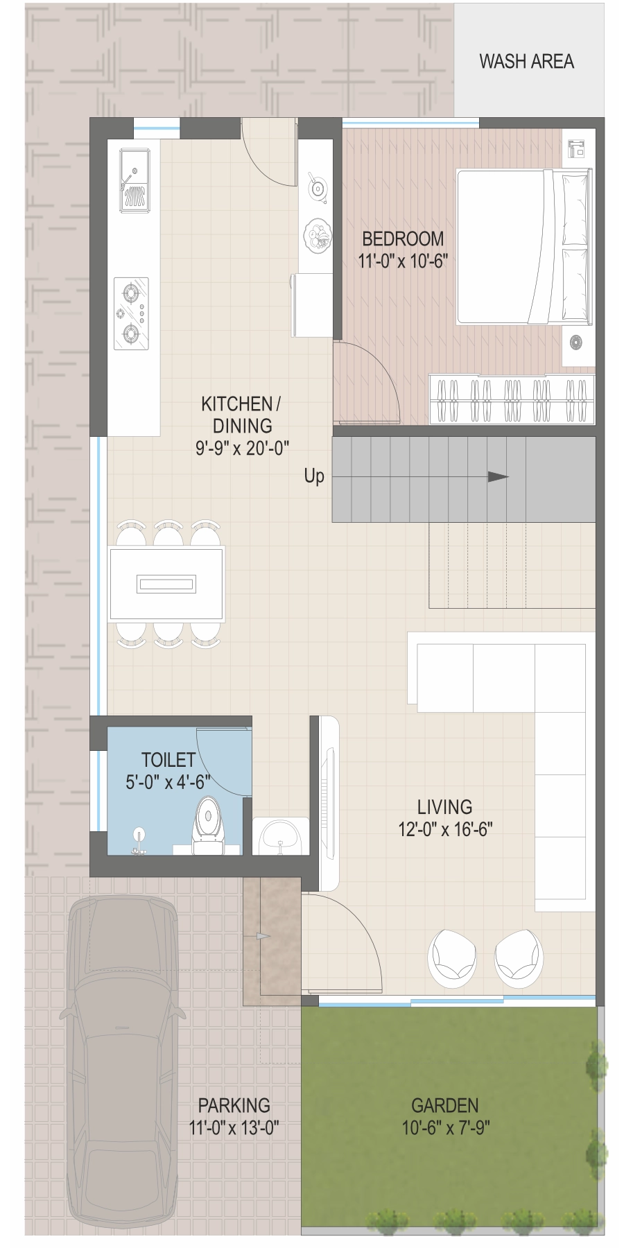
Floor Plans

Effortless Living Spaces

44
Refined Triplex Residences
|

Kishan Sagewood presents a collection of meticulously designed 4 BHK luxurious bungalows, each thoughtfully crafted to maximize space and comfort.

Bedroom: 4
Living: 1
Kitchen: 1
Balcony: 2
Bathroom: 4
Club House

Where Community Blossoms

The Kishan Sagewood clubhouse is envisioned as a vibrant hub designed to enrich the lives of its residents. It's a space where community ties are strengthened, and well-being is prioritized. Residents can enjoy a range of amenities, from spaces designed for fitness and recreation, to areas fostering social interaction and relaxation. Whether pursuing an active lifestyle, unwinding after a long day, or connecting with neighbors, the clubhouse offers a valuable extension of the Sagewood living experience, promoting a balanced and fulfilling life.

Key Features

Where Elegance Resides

  •   Attractive Entrance Gate
  •   24 × 7 Security wtih Cabin
  •   CCTV Surveillance in Common Area
  •   Society boundary wall
  •   Underground Cabling for Wire Free Look
  •   Rainwater Harvesting system
  •   Termite Resistance Treatment
Amenities

Indulge in Comfort

Multipurpose Hall
Gazebo
Swimming Pool
Gymnasium
Lush Green Garden
Indoor Games
Children Play Area
Jogging Track
Senior Citizen Sitting
Yoga Area
Specification

Defined by Quality

Structure

All RCC & Brick work as per structural engineer's design

Flooring

Premium vitrified tiles in guest lounge, kitchen, dining area & bedrooms.

Doors

Main door High quality wooden frame door with veneer paneling on both sides. Other internal doors: Stone frames with veneer flush doors.

Window

Aluminum window.

Kitchen

Exclusive granite platform with SS Sink with designer tiles. Wash area with ceramic tiles dado & natural stone flooring.

Paint

Internal mala plaster with 2 coat putty, primer & external single coot plaster with rustic texture

Toilet

Designer bathroom with premium quality fitting & vessels

Terrace Finish

Elegant china mosaic finish with proofing treatment.

Nearby Places

Everything You Need

  • RD'S Infusion Global Veg Kitchen
    3.7 km
  • Taste Oasis
    3.7 km
  • Status Fine Dine Restaurant & Banquet
    650 m
  • Mehfil Cafe
    3.3 km
  • Shree Khodiyar Kathiyawadi Dhaba
    750 m
  • William John's Pizza
    1.4 m
  • Downtown Restro Cafe
    550 m
  • Ramkrishna Paramhansa Hospital
    3.1 km
  • BAPS Shastriji Maharaj Hospital
    2.9 km
  • Jupiter Hospital
    2.4 km
  • Adarsh Hospital & ICU
    1.4 km
  • Phoenix International School (CBSE)
    4.1 km
  • Phoenix School (GSEB)
    2.8 km
  • Vibgyor High School (CBSE & ICSE)
    1.4 km
  • BAPS Swaminarayan Vidyamandir (GSEB)
    1.8 km
  • Tree House High School (CBSE)
    1.4 km
  • Tree House High School (GSEB)
    2.8 km
  • Sinchan Pre-School
    2.2 km

We Request

  • Possession will be given after one month of settlement of account.
  • Extra work will be executed after receipt of full advance payment.
  • Stamp Duty, Registration Charge, GST, or any new central govt/VUDA taxes, if applicable, shall be borne by the client.
  • Continuous default in payments will lead to cancellation.
  • Architect/Developers shall have the right to change or revise the scheme or any details; such changes shall be binding to all.
  • In case of delay in light connection by authority, developers will not be responsible.
  • All dimensions are indicative and actual dimensions in each room/plot may slightly vary.
  • Common compound wall of individual unit will be as per architect's design.
  • In case of cancellation of booking, 5% of the total value of the bungalow and payable tax will not be refunded.
  • Any plans, specifications or information in this brochure cannot form part of an offer, contract or agreement.
  • All members shall essentially be part of the society formed by the association members and abide by the society bylaws.
  • After virtual completion of the work, all repairs and maintenance such as drainage, watchman salary, electricity bills, etc. shall be borne by society members.
  • Members of the society are not allowed to change the elevation of the duplex under any circumstances.
  • This brochure shall not be treated as a legal document; it is only for informational purposes.

Value Additions

  • Internal R.C.C. Road with Street Light
  • Underground & Overhead Water Tank
  • 24 Hours Water Supply
  • Number Plate

Payment Mode

  • 20% on Booking
  • 15% on Plinth
  • 15% on GF Slab
  • 15% on FF Slab
  • 15% at Plaster
  • 15% at Flooring
  • 05% on Finishing
Where to Find Us

From Your Place to Ours

Site Location

Behind Samanvay Status 1, 30 Mtr Canal Road, TP 27A Bill, Atladara-Padra Main Road, Vadodara - 391 410.

Ready to move in?

Send us your inquiry today!

Inquire Now
Scroll