Virtual Tour
01
01
01
Overview

Grand Living Redefined

Kishan Signature-1 Bungalow offers an experience of grandeur and sophisticated living, beginning with a wide and welcoming entrance designed to leave a lasting first impression. Our community is thoughtfully crafted with picturesque, tree-lined avenues that promise peace and exclusivity.

Download Brochure

ARCHITECT BY

Ruchir Seth

LOCATION

Bill, Vadodara

TYPE

Triplex
RERA REGISTRATION NO. : PR/GJ/VADODARA/VADODARA/Vadodara Municipal Corporation/RAA14802/110225/311229
Layout Plans

Design Meets Functionality

LAYOUT PLAN
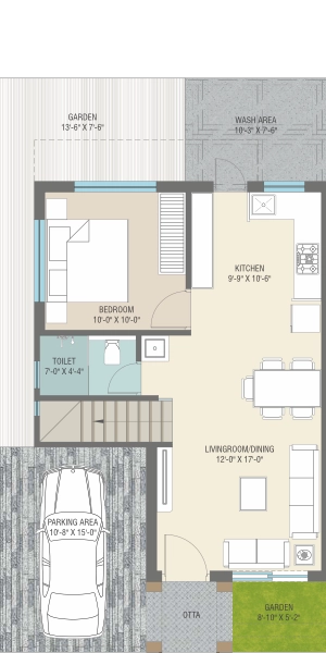
Floor Plans

Effortless Living Spaces

84
Elegant Triplex Bungalows
|

Kishan Signature-1 Bungalow presents an exclusive collection of 84 meticulously designed bungalows, each thoughtfully crafted to offer spacious and comfortable living.

Bedroom: 4
Living: 1
Kitchen: 1
Balcony: 2
Bathroom: 4

Ground Floor

First Floor

Second Floor

Bedroom: 5
Living: 1
Kitchen: 1
Balcony: 1
Bathroom: 6

Ground Floor

First Floor

Second Floor

Amenities

Indulge in Comfort

Lush Green Garden
Gymnasium
Club House
24x7 Security
Water Tank With Sensor
24 Hours Water Supply
Attractive Name Plate
Anti Termite Treatment
Under Ground Cabeling
Swimming Pool
Indoor-Outdoor Game
Specification

Defined by Quality

Structure

All RCC & brick work as per structural engineer's design

Bathroom

Designer bathrooms with premium quality fittings & vessels Glazed tile dado

Kitchen

Exclusive granite platform with S.5. Sink & designer tiles

Flooring

Premium vitrified tile flooring Premium designer anti-skid tiles in bathrooms

Doors & Windows

Main Door: High quality woodern frame
Internal Doors: decorative flush doors, Aluminium section windows with safety grill

Paint & Finish

Internal walls finished with smooth finish plaster with Putty & Primer External walls finished with double coat plaster & exterior paint

Electrification

Concealed copper ISI Wiring & branded modular switches with sufficient points, AC Points in all bedroom with concealed wiring

Nearby Places

Everything You Need

  • RD'S Infusion Global Veg Kitchen
    3.7 km
  • Taste Oasis
    3.2 km
  • Status Fine Dine Restaurant & Banquet
    2.6 km
  • Mehfil Cafe
    2.8 km
  • Shree Khodiyar Kathiyawadi Dhaba
    2.5 km
  • William John's Pizza
    2.3 m
  • Downtown Restro Cafe
    2.2 m
  • Ramkrishna Paramhansa Hospital
    2.6 km
  • Shroff Foundation Hospital
    2.7 km
  • BAPS Shastriji Maharaj Hospital
    3.9 km
  • Jupiter Hospital
    3.7 km
  • Adarsh Hospital & ICU
    2.3 km
  • Phoenix International School (CBSE)
    4.6 km
  • Phoenix School (GSEB)
    3.1 km
  • Vibgyor High School (CBSE & ICSE)
    2.7 km
  • BAPS Swaminarayan Vidyamandir (GSEB)
    3.1 km
  • Tree House High School (CBSE)
    2.3 km
  • Tree House High School (GSEB)
    3.8 km
  • Sinchan Pre-School
    1.7 km

We Request

  • Possession will be given after one month of settlement of account.
  • Extra work will be executed after receipt of full advance payment.
  • Stamp Duty, Registration Charge, GST, or any new central govt/VUDA taxes, if applicable, shall be borne by the client.
  • Continuous default in payments will lead to cancellation.
  • Architect/Developers shall have the right to change or revise the scheme or any details; such changes shall be binding to all.
  • In case of delay in light connection by authority, developers will not be responsible.
  • All dimensions are indicative and actual dimensions in each room/plot may slightly vary.
  • Common compound wall of individual unit will be as per architect's design.
  • In case of cancellation of booking, 5% of the total value of the bungalow and payable tax will not be refunded.
  • Any plans, specifications or information in this brochure cannot form part of an offer, contract or agreement.
  • All members shall essentially be part of the society formed by the association members and abide by the society bylaws.
  • After virtual completion of the work, all repairs and maintenance such as drainage, watchman salary, electricity bills, etc. shall be borne by society members.
  • Members of the society are not allowed to change the elevation of the duplex under any circumstances.
  • This brochure shall not be treated as a legal document; it is only for informational purposes.

Payment Mode

  • 20% ON BOOKING
  • 15% ON PLINTH
  • 15% ON GF SLAB
  • 15% ON FF SLAB
  • 15% AT PLASTER
  • 15% AT FLOORING
  • 5% ON FINISHING
Where to Find Us

From Your Place to Ours

Site Location

Kishan Signature 1, Bill-Kalali Rd, opp. Pushpam Homes, Bill, Vadodara, Gujarat 391410

Call us
Ready to move in?

Send us your inquiry today!

Inquire Now
Scroll